






























51, Haydnplantsoen, Stedenwijk, Almere Stad, Almere, Flevoland, Nederland, 1323 EC, Nederland
Te Koop
€352,500
Aan een rustige straat in de populaire Muziekwijk gelegen eindwoning met vrijstaande berging, tuin, ondergrond en verdere aanhorigheden. Betonnen heifundering, gemetselde spouwmuren, houten kozijnen en een houten dak gedekt met pannen. De verwarming geschied op stadsverwarming met aangesloten radiator. De woning is voorzien van water en elektra en Grote kunststof pui in woonkamer 2018 De woning heeft veel ruimte met onder meer 4 slaapkamers, een aangebouwde stenen berging aan de achterzijde en een zonnige achtertuin. De woning ligt aan een autoloze straat, met een brede groenstrook en een fietspad voor de deur. Haydnplantsoen51 is gelegen in Muziekwijk Zuid. Dit is een kindvriendelijke buurt met relatief veel gezinnen. Verder is het een betrekkelijk rustige buurt gekeken naar de bevolkingsdichtheiden.
De woning is goed bereikbaar met veel voorzieningen in de buurt. Gesitueerd op fietsafstand van het centrum van Almere, loopafstand van een supermarkt en loopafstand van een treinstation. Daarnaast is de dichtstbijzijnde uitvalsweg in de nabije omgeving op slechts 3 minuten rijden. De aangeboden prijs is een zogenaamde bieden vanaf prijs. Dit betekent dat de verkoper biedingen boven de genoemde prijs serieus in overweging wil nemen.
Indeling:
entree, hal, toilet met fontein, meterkast en trapopgang met trapkast. Het eerste wat opvalt als men de tuingerichte woonkamer betreedt is de prachtige licht inval door de grote ramen van de schuifpui. Er ligt een fraai laminaat vloer, welk keurig is afgewerkt en professioneel gelegd Aan de voorzijde is de zeer ruime woonkeuken waar in een functioneel keukenblok met inbouw apparatuur is geplaatst. De zonnige achtertuin is gelegen op het zuiden en is circa 9 meter diep. De tuin is voorzien van sierbestrating, houten schuttingdelen
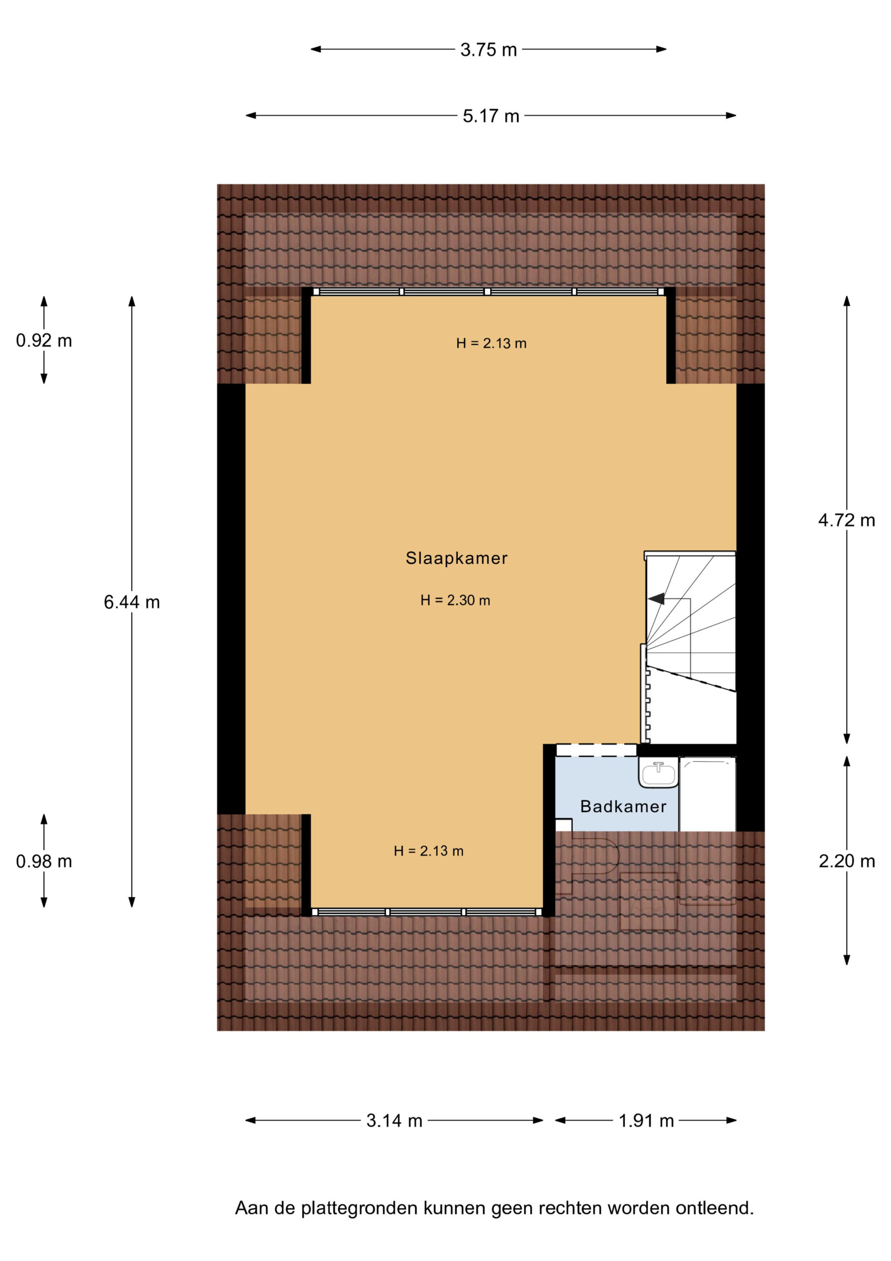
1e verdieping:
Overloop met toegang tot drie slaapkamers van verschillende afmetingen en de badkamer. Twee slaapkamers zijn gelegen aan de achterzijde en een aan de voorzijde. De slaapkamers zijn afgewerkt met een keurige laminaat. De badkamer is voorzien van een heerlijk ligbad, tweede toilet en een wastafel.
2e verdieping:
Vaste trap naar de zolderverdieping. De zolder is op te delen in een vierde slaapkamer en extra bad kamer met een ligbad, derde toilet en riante wasruimte. Achter de knieschotten bevind zich voldoende opbergruimte. De zolderverdieping is voorzien van twee kunststof dakkapel wat deze ruimte in de voor en achter kanten nog groter maakt en mechanische ventilatie bevindt zich hier .
Tuin:
De heerlijke riante achtertuin (9,15 x 5,18 meter) is keurig aangelegd middels bestrating,
Bijzonderheden:
– Grote kunststof pui in woonkamer 2018 – Gehele verdieping voorzien van laminaatvloer – Trap in 2020 opnieuw bekleed – Royale gezinswoning met 4 goede slaapkamers. – Gunstige ligging t.o.v. alle denkbare voorzieningen, openbaar vervoer en de uitvalswegen – een autoloze straat, met een brede groenstrook en een fietspad voor de deur. – Mooie badkamer en wc in de Zolder ( 4e Slaapkamer ) Groot dakkapel van kunststof aan de voor/achterzijde.
Soort woonhuis: Eengezinswoning, Eindwoning
Soort bouw: Bestaande bouw
Bouwjaar: 1989
Soort dak: Zadeldak
Voorlopig energielabel: C
Dakisolatie, muurisolatie, vloerisolatie, dubbel glas, gedeeltelijk dubbel glas, voorzetramen, volledig geïsoleerd, geen spouw en eco-bouw
Wonen: 122 m²
Externe bergruimte: 0 m²
Perceel: 130 m²
Inhoud: 375 m³
Aantal kamers: 5 kamers (4 slaapkamers)
Aantal badkamers: 2 apart toilet
Aantal woonlagen:< 3 woonlagen
Voorzieningen: Mechanische ventilatie
ALMERE K 1483
Oppervlakte: 130 m²
Volle eigendom
Ligging: aan een autoloze straat, met een brede groenstrook en een fietspad voor de deur.
Buitenruimte
Ligging: woonwijk Tuin: Achtertuin en voortuin
Achtertuin: 47 m² (9,15m diep en 5,19m breed)
Schuur/berging: Vrijstaande baksteen berging
Voorzieningen: Elektra
Soort parkeergelegenheid: Openbaar parkeren
De woning wordt opgeleverd in de staat waarin hij zich thans bevindt.
Deze informatie is met de nodige zorgvuldigheid samengesteld. Onzerzijds wordt echter geen enkele aansprakelijkheid aanvaard voor enige onvolledigheid, onjuistheid of anderszins, dan wel de gevolgen daarvan. Alle opgegeven maten en oppervlakten zijn indicatief..
© 2023. Alle rechten voorbehouden.
Owning a home is a keystone of wealth… both financial affluence and emotional security.
Suze Orman